SC152

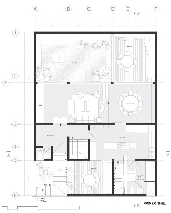
Retomar en una casa vieja y en una de las colonias más tradicionales de la Ciudad de México como lo es San Ángel, restaurarla, reestructurarla y ampliarla fue el gran reto en este proyecto.

Una casa que cada espacio interior cuenta con una relación al exterior de manera magnífica, terrazas y muros verdes, aprovechando la orientación, para poder hacer de esta casa un espacio muy cálido. La conectividad visual entre las 5 terrazas en sus tres niveles hacen que la casa se vuelva escalonada, cada terraza contando con una temática diferente de acuerdo a su orientación y paisaje. Materiales como recintos y pétreos, visten la fachada, al igual que la madera natural de sus terrazas.

Ficha técnica

Ubicación: Ciudad de México

Año: 2014

Estado: Construido

Dimensión: 320 ㎡

Diseño: DF Arquitectos

Equipo de Trabajo:Alonso de la Fuente, César Flores, Enrique Rendón, Bidasari Ortega, Mariana de la Fuente, Claudia Ban

Estructura: Cafel Ingenierías

Paisaje Polen Diseño Vivo

Fotografía: Anahop

#SC152

Últimas Noticias

Acabados cálidos y materiales aparentes: Cova 07 por DF Arquitectos

Un espacio que revaloriza las zonas y fomenta la actividad económica de los barrios, viviendo hacia los espacios interiores.

Cova07 Primer Lugar en vivienda Plurifamiliar Premio Firenze EntreMuros

Descubre cuáles son las obras ganadoras de los primeros lugares del Premio Firenze Entremuros, en las nueve categorías de arquitectura y diseño que lo conforman.

Cápsula Crest - Alonso de la Fuente

¿Alguna vez has buscado el consejo o recomendación de un profesional? ¡Alonso de la Fuente nos comparte su mensaje!

Archello - Cova07

I seek to intervene in a neighborhood in Mexico City that has survived time and where as a user you identify through its stories, with a contemporary proposal with total respect for space.

Congreso Virtual Arquitectura y Diseño

Charla con Alonso de la Fuente, presentada por Radio Arquitectura. Conducen Ricardo Noriegga y Fabián del Valle.

Architect Sense - Cova07

En este proyecto, el principal problema que los arquitectos deben tratar es integrar la arquitectura en una ciudad diversa. El edificio está ubicado en un bloque histórico, su estilo moderno satisface sus necesidades funcionales y el uso de materiales refleja el gran respeto por el espacio.

Contacto

Déjanos tu información y nos pondremos en contacto de inmediato.