COVA 07

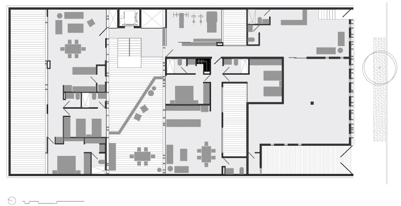
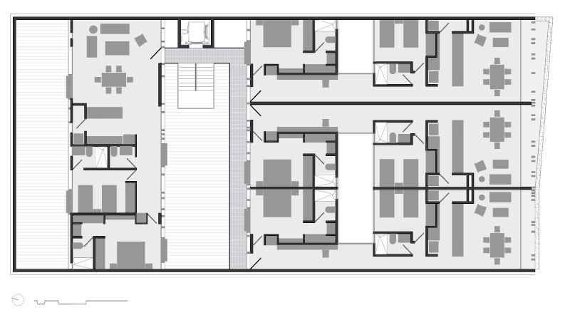
En el corazón de uno de los barrios mas tradicionales de la Ciudad y con mayor crecimiento en los próximos años, se plantea un edificio de 14 viviendas, todas con espacios integrados al contexto.

Ficha técnica

Ubicación: Ciudad de México

Año: 2017

Estado: Construido

Dimensión: 3000 ㎡

Diseño: DF Arquitectos

Equipo de Trabajo: Alonso de la Fuente, Andrés Vivanco, Fernanda López, Mario Climent, Elan Sandoval, Bidasari Ortega, Isaac García, Lázaro Benavides

Iluminación: Miguel Angel Vega

Construcción: Acabados Puntuales

#COVA07

Aprovechando la iluminación natural para llegar a todos los espacios interiores, el uso de acabados cálidos con una mezcla de materiales aparentes, hacen del lugar un espacio agradable para habitar.

Entre árboles de las vialidades, patios interiores, cubos de luz, circulaciones exteriores, este desarrollo es único en la zona. También ofrece un business center, gimnasio, terraza y salón de usos múltiples, conectados entre sí de forma dinámica.

Últimas Noticias

Edificio Cova07 / ArchDaily

El proyecto plantea un edificio de 14 viviendas, todas con espacios integrados al contexto, buscando que todos los espacios interiores encuentran esa vista puntual o conexión al exterior, sin olvidar el pasado, aprovechando la iluminación natural para llegar a todos los espacios, el uso de acabas cálidos, con una mezcla de materiales aparentes, hace un espacio agradable para habitar.

Acabados cálidos y materiales aparentes: Cova 07 por DF Arquitectos

Un espacio que revaloriza las zonas y fomenta la actividad económica de los barrios, viviendo hacia los espacios interiores.

Cova07 Primer Lugar en vivienda Plurifamiliar Premio Firenze EntreMuros

Descubre cuáles son las obras ganadoras de los primeros lugares del Premio Firenze Entremuros, en las nueve categorías de arquitectura y diseño que lo conforman.

Cápsula Crest - Alonso de la Fuente

¿Alguna vez has buscado el consejo o recomendación de un profesional? ¡Alonso de la Fuente nos comparte su mensaje!

Archello - Cova07

I seek to intervene in a neighborhood in Mexico City that has survived time and where as a user you identify through its stories, with a contemporary proposal with total respect for space.

Congreso Virtual Arquitectura y Diseño

Charla con Alonso de la Fuente, presentada por Radio Arquitectura. Conducen Ricardo Noriegga y Fabián del Valle.

Architect Sense - Cova07

En este proyecto, el principal problema que los arquitectos deben tratar es integrar la arquitectura en una ciudad diversa. El edificio está ubicado en un bloque histórico, su estilo moderno satisface sus necesidades funcionales y el uso de materiales refleja el gran respeto por el espacio.

Contacto

Déjanos tu información y nos pondremos en contacto de inmediato.