


Casa O
El proyecto busca refrescar la casa con materiales como el concreto en muros, plafones y pisos, y bajar las altas temperaturas en cierta época del año. Entradas de luz cenitales y ventilaciones cruzadas con desfogues por la azotea para refrescar la propia ventilación y el calor que pueda transmitirse por el subsuelo, a su vez, la casa de desplanta sobre un basamento elevado 80cm para evitar roedores, inundaciones y altas temperaturas.
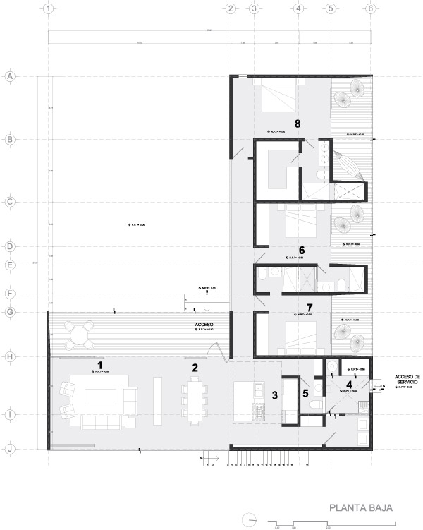
La casa funciona con un partido arquitectónico muy sencillo en forma de “L”, mismo que reúne las vistas de los espacios principales al jardín privativo, mientras que las habitaciones secundarias, protegidas por el asoleamiento, logran una vista más privada a los huertos posteriores de la propiedad.
Logrando un diseño de vanguardia, optimizando con materiales de construcción y acabados, se logra un proyecto que cumple las necesidades del cliente de una manera muy sencilla y también logra adaptarse el sitio de una manera más congruente.
Ficha técnica
Ubicación: Oacalco, Morelos
Año: 2016
Estado: Proyecto
Dimensión: 310 ㎡
Diseño: DF Arquitectos
Equipo de Trabajo: Alonso de la Fuente, Alberto Villarreal, Claudia Ban, Enrique Rendón
#CasaORelación de espacios
1. Estancia
2. Comedor
3. Cocina
4. Servicio
5. Medio baño
6. Recámara 1
7. Recámara 2
8. Recámara Master





Últimas Noticias

Acabados cálidos y materiales aparentes: Cova 07 por DF Arquitectos
Un espacio que revaloriza las zonas y fomenta la actividad económica de los barrios, viviendo hacia los espacios interiores.

Cova07 Primer Lugar en vivienda Plurifamiliar Premio Firenze EntreMuros
Descubre cuáles son las obras ganadoras de los primeros lugares del Premio Firenze Entremuros, en las nueve categorías de arquitectura y diseño que lo conforman.

Cápsula Crest - Alonso de la Fuente
¿Alguna vez has buscado el consejo o recomendación de un profesional? ¡Alonso de la Fuente nos comparte su mensaje!

Archello - Cova07
I seek to intervene in a neighborhood in Mexico City that has survived time and where as a user you identify through its stories, with a contemporary proposal with total respect for space.

Congreso Virtual Arquitectura y Diseño
Charla con Alonso de la Fuente, presentada por Radio Arquitectura. Conducen Ricardo Noriegga y Fabián del Valle.

Architect Sense - Cova07
En este proyecto, el principal problema que los arquitectos deben tratar es integrar la arquitectura en una ciudad diversa. El edificio está ubicado en un bloque histórico, su estilo moderno satisface sus necesidades funcionales y el uso de materiales refleja el gran respeto por el espacio.

Contacto
Déjanos tu información y nos pondremos en contacto de inmediato.