
Anatole France
En una de las zonas más exclusivas de Polanco, un edificio que cumpla con las caracteristicas de adaptacion al entorno.
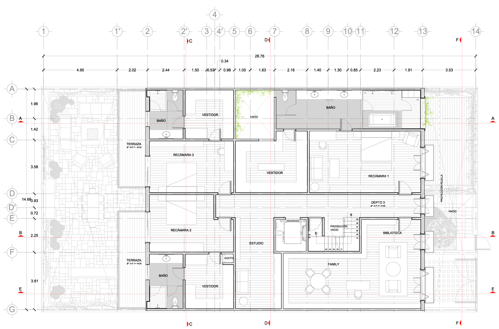
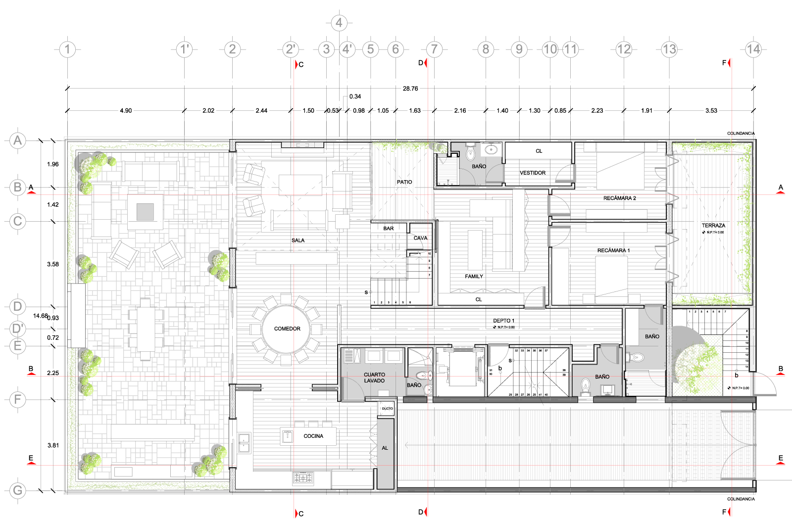
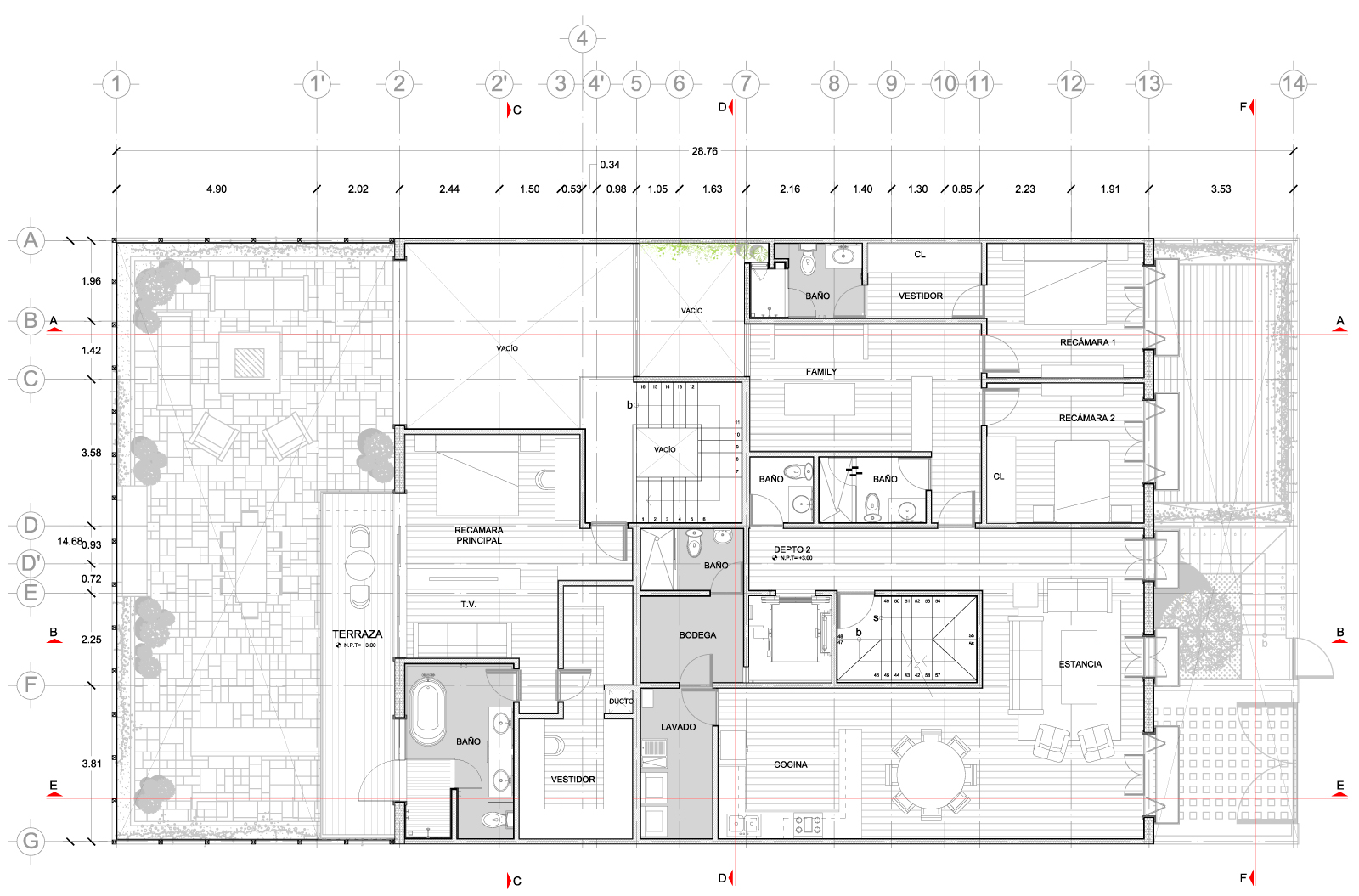
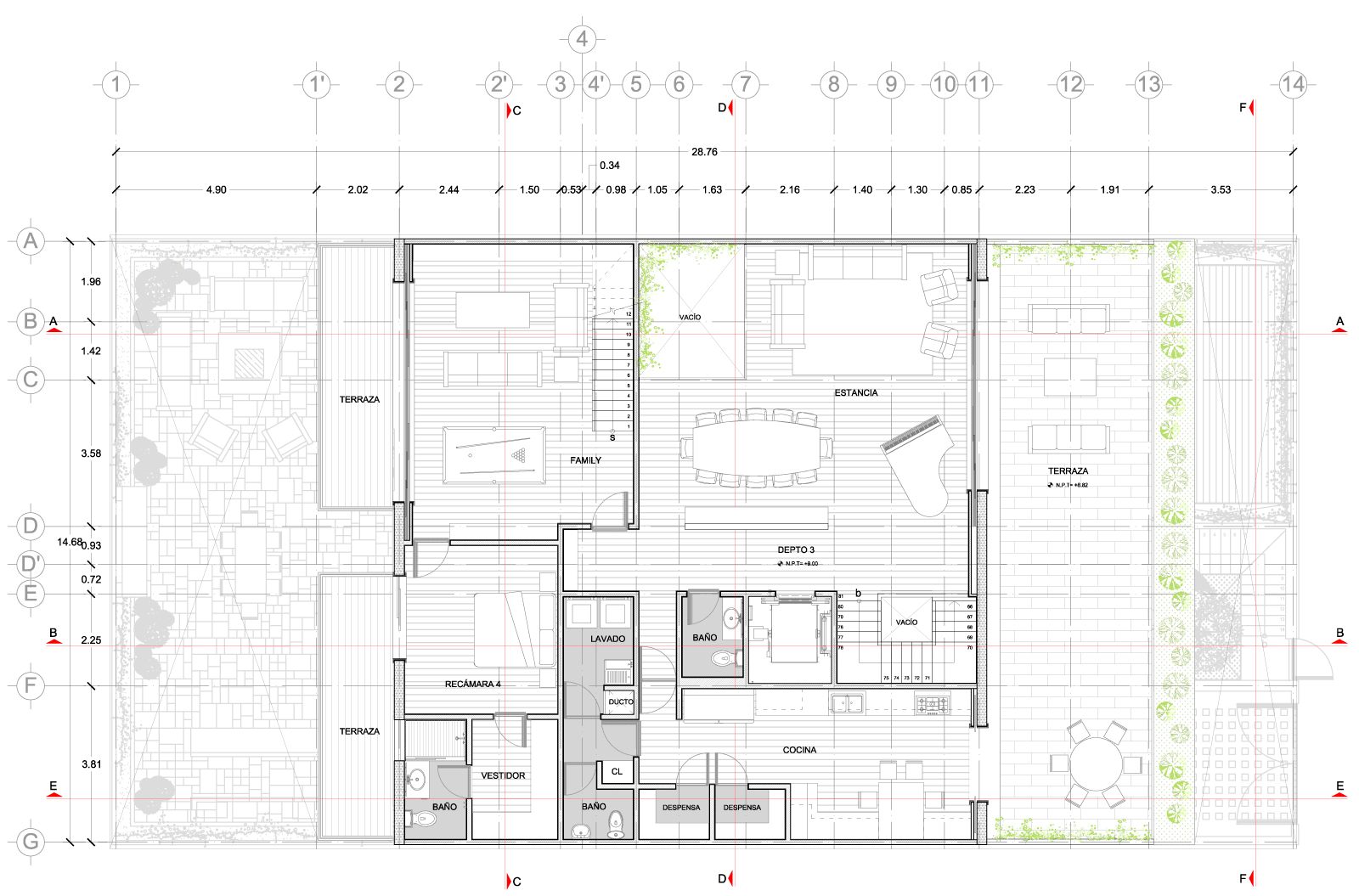
Se proyectó construir un edificio de 7 niveles, para alojar 3 departamentos diferentes dimensiones y diferentes usos múltiples. El edificio cuenta con una altura de 15 metros sobre el nivel de banqueta y dos sótanos. El acceso al edificio se da a través de la planta baja por medio de una rampa para vehículos y un acceso peatonal con escaleras para bajar al lobby en el primer sótano.
La volumetría y diseño de la fachada cumple con el entorno de Polanco, donde se respetan las proporciones de vanos y macizos, el uso armónico de los materiales y acabados, la orientación e iluminación adecuada. Encontrar ese balance entre una una arquitectura más clásica con algunos elementos contemporáneos fueron el resultado del proyecto. Siendo ya un edificio único en la zona.
Ficha técnica
Ubicación: Ciudad de México
Año: 2017
Estado: Construido
Dimensión: 2000 ㎡
Diseño: DF Arquitectos
Equipo de Trabajo: Alonso de la Fuente, Roberto Figueroa, Carla Castañeda, Bidasai Ortega, Enrique Rendón, Isaac García.
Arquitectura de interiores: MAAD Arquitectura
Estructura: Cafel Ingenierías
Construcción: GANA Construcciones
#AF38







Últimas Noticias

Acabados cálidos y materiales aparentes: Cova 07 por DF Arquitectos
Un espacio que revaloriza las zonas y fomenta la actividad económica de los barrios, viviendo hacia los espacios interiores.

Cova07 Primer Lugar en vivienda Plurifamiliar Premio Firenze EntreMuros
Descubre cuáles son las obras ganadoras de los primeros lugares del Premio Firenze Entremuros, en las nueve categorías de arquitectura y diseño que lo conforman.

Cápsula Crest - Alonso de la Fuente
¿Alguna vez has buscado el consejo o recomendación de un profesional? ¡Alonso de la Fuente nos comparte su mensaje!

Archello - Cova07
I seek to intervene in a neighborhood in Mexico City that has survived time and where as a user you identify through its stories, with a contemporary proposal with total respect for space.

Congreso Virtual Arquitectura y Diseño
Charla con Alonso de la Fuente, presentada por Radio Arquitectura. Conducen Ricardo Noriegga y Fabián del Valle.

Architect Sense - Cova07
En este proyecto, el principal problema que los arquitectos deben tratar es integrar la arquitectura en una ciudad diversa. El edificio está ubicado en un bloque histórico, su estilo moderno satisface sus necesidades funcionales y el uso de materiales refleja el gran respeto por el espacio.

Contacto
Déjanos tu información y nos pondremos en contacto de inmediato.