
A778
Un proyecto de remodelación y restauración de casa habitación ubicada en Jardines del Pedregal al sur de la Ciudad de México. Construcción original de 1970, de estilo funcionalista.
El proyecto consistió en recuperar y dejar en su estado original la mayor parte de la casa. Los espacios se distribuyen en una sola planta en forma de L con una proporción horizontal construida sobre roca volcánica (típica de la zona) y columnas de acero.
La casa cuenta con 2 jardines que le proporcionan a cada espacio luz y ventilación naturales. En el proyecto se consideró la recuperación y reutilización de materiales para el diseño de interiores.
Ficha técnica
Ubicación: Ciudad de México
Año: 2014
Dimensión: 640 ㎡
Diseño: DF Arquitectos
Equipo de Trabajo: Alonso de la Fuente, Mariana de la Fuente
Iluminación: Lux Populi
Fotografía: Anahop
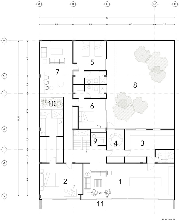
#A778Relación de espacios
1. Sala comedor
2. Recámara principal
3. Cocina
4. Antecomedor
5. Recámara
6. Recámara
7. Family room
8. Jardín interior
9. Medio baño
10. Huerto
11. Terraza









Últimas Noticias

Acabados cálidos y materiales aparentes: Cova 07 por DF Arquitectos
Un espacio que revaloriza las zonas y fomenta la actividad económica de los barrios, viviendo hacia los espacios interiores.

Cova07 Primer Lugar en vivienda Plurifamiliar Premio Firenze EntreMuros
Descubre cuáles son las obras ganadoras de los primeros lugares del Premio Firenze Entremuros, en las nueve categorías de arquitectura y diseño que lo conforman.

Cápsula Crest - Alonso de la Fuente
¿Alguna vez has buscado el consejo o recomendación de un profesional? ¡Alonso de la Fuente nos comparte su mensaje!

Archello - Cova07
I seek to intervene in a neighborhood in Mexico City that has survived time and where as a user you identify through its stories, with a contemporary proposal with total respect for space.

Congreso Virtual Arquitectura y Diseño
Charla con Alonso de la Fuente, presentada por Radio Arquitectura. Conducen Ricardo Noriegga y Fabián del Valle.

Architect Sense - Cova07
En este proyecto, el principal problema que los arquitectos deben tratar es integrar la arquitectura en una ciudad diversa. El edificio está ubicado en un bloque histórico, su estilo moderno satisface sus necesidades funcionales y el uso de materiales refleja el gran respeto por el espacio.

Contacto
Déjanos tu información y nos pondremos en contacto de inmediato.